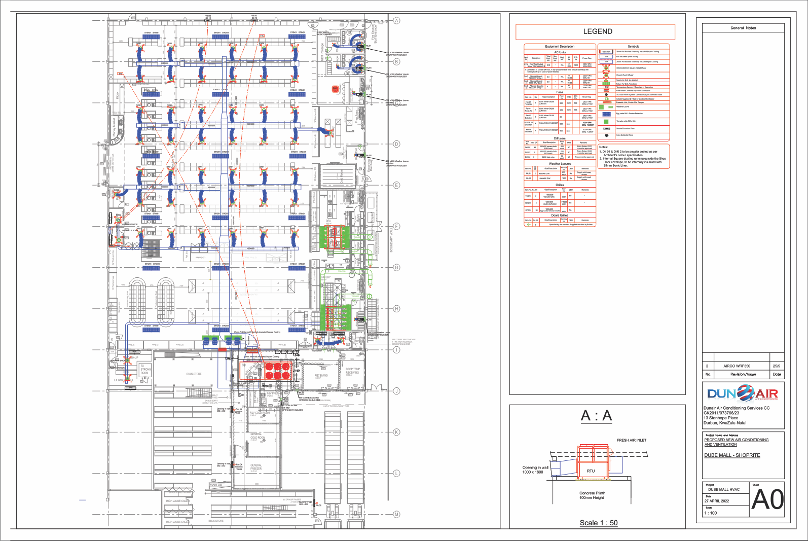
SHOPRITE DUBE VILLAGE

After the Durban looting Shoprite in Dube Village was completely rebuild. DunAir was commissioned to design and install the air conditioning and fresh air systems. A 350kw roof top package was used with an in ceiling duct feeding ceiling mounted diffusers.